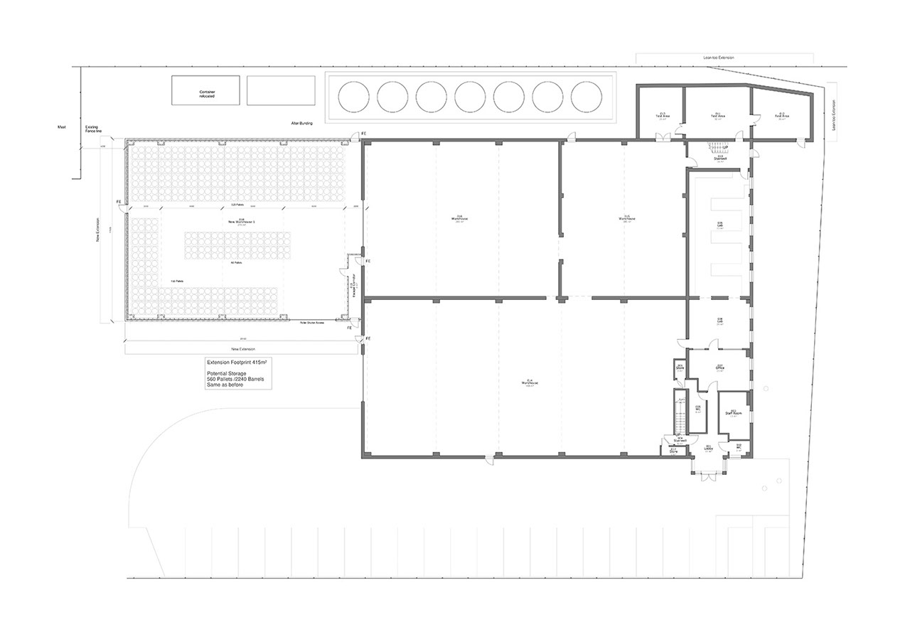
Commercial and Industrial

Huntsman

We work closely with new and existing clients to realise their business potential whether this requires the adaptation or the expansion of existing premises or new-build projects. We tailor our services and explore options with our clients to create the best solution to meet their needs.

 

We have experience in retail, leisure and recreation, businesses, mixed use, industrial and master planning.

Chill @ the cowShed

To book a consultation, please click here

© 2025 S H Wilkinson Architects Ltd. All Rights Reserved.

Terms and Conditions

Privacy Policy

Cookie Policy

Commercial and Industrial

Huntsman

Chill @ the cowShed

To book a consultation, please click here